
Bridgeview House
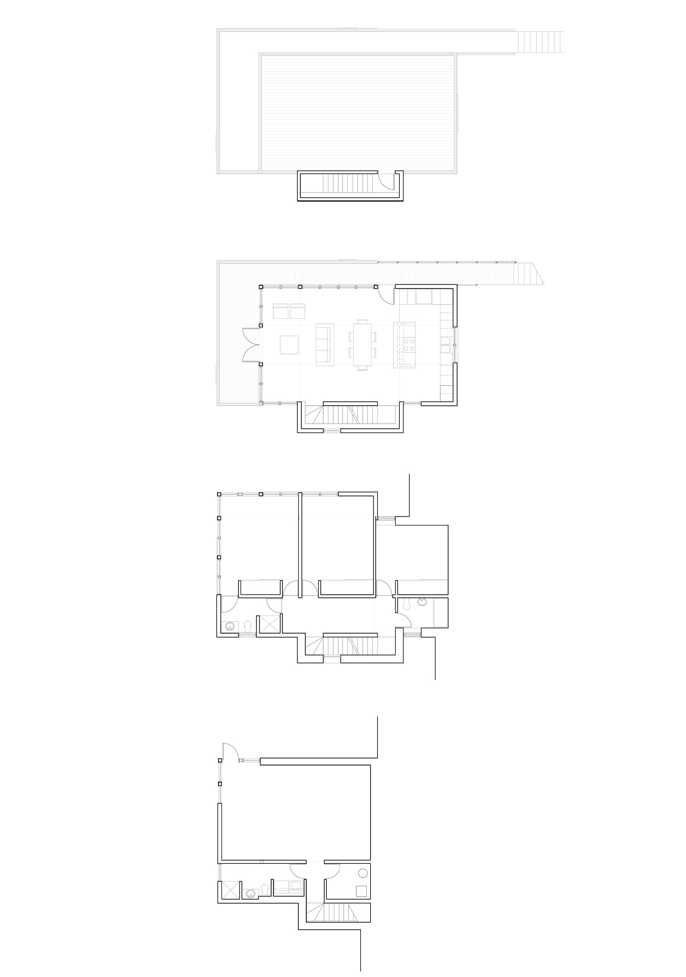
The house is located on a steeply sloping, wooded site with granite boulder outcrops on the outskirts of Halifax, Nova Scotia. Wanting to experience the site at many levels organized the house as a four-storey plan stepping from the road to the forest floor, with every part of the plan accessible. Outdoor gathering and play areas were created on the roof, among the treetops; on the deck and bridge that extends from the main living space; and between the granite boulders on the forest floor. Early investigation on the site by the design-build team shaped the floor plans to eliminate the need for any rock removal and limit tree removal on the site.
Type
Architecture
Houses
Year
2009
Size
Location
Halifax, Nova Scotia
Partner
Awards







Collaborators
Andrea Doncaster Engineering
Brainard Fitzgerald Developments
Photography
James Steeves
Related Projects